Chung cư Sky Oasis bao gồm 05 căn hộ 2 phòng ngủ và 02 căn hộ 2 phòng ngủ +1 trên một mặt bằng. Trong đó có 04 căn hộ có hướng view về phía Biệt thự đảo, Sân Gofl, khu vui chơi của Sky Oasis như tuyến phố đi bộ, khu mua sắm sầm uất, khu vui chơi cho trẻ con. 05 căn còn lại có hướng view ra Sông Hồng vô cùng thoáng đãng và đẹp.

MẶT BẰNG CHUNG CƯ SKY OASIS

Giá bán Chung cư Sky Oasis

NHỮNG AI NÊN MUA CĂN HỘ 2 PHÒNG NGỦ SKY OASIS

Căn hộ 2 phòng ngủ Sky Oasis có giá thành khá hợp lý, với mức đầu tư vừa phải, khả năng sinh lời cao, nên rất phù hợp với những nhóm khách hàng như:

  • Gia đình trẻ
  • Gia đình có 1 đến 2 con với số lượng người ở vừa phải
  • Khách đầu tư cho thuê lâu dài, thuê Homestay, đặc biệt là AirBnB vì lượng khách đổ về Ecopark để nghỉ dưỡng, check in là rất nhiều..

THIẾT KẾ CĂN HỘ 2 PHÒNG NGỦ SKY OASIS

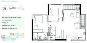
Loại căn hộ: 2 Phòng ngủ, 2wc

Vị trí căn: 03, 05A, 07, 11, 12, 16, 17

Hướng: ĐN, TB

Diện tích (tim): 75.0m2

Diện tích TT: 67.7 –68.2m2

TẢI BÁO GIÁ

Loại căn hộ: 2 Phòng ngủ, 2wc

Vị trí căn: 03, 05A, 07, 11, 12, 16, 17

Hướng: ĐN, TB

Diện tích (tim): 75.0m2

Diện tích TT: 67.7 –68.2m2

TẢI BÁO GIÁ